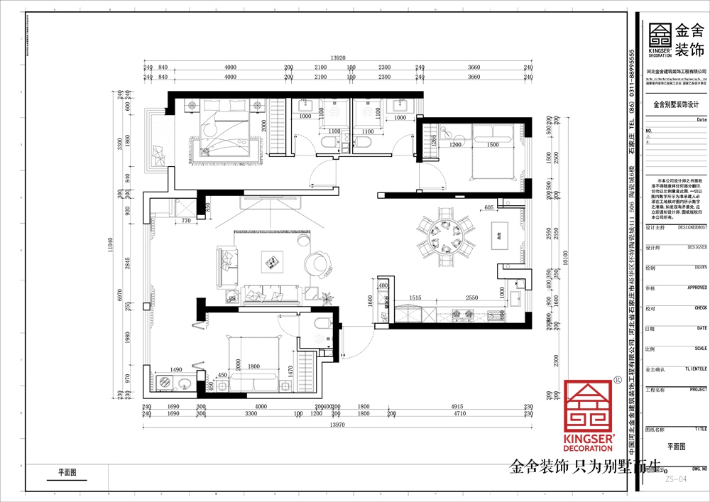
面積戶型丨145㎡
常住成員丨一對夫妻+兒子+女兒
主要材質丨金屬、木飾面、巖板、木格柵
設計風格丨現代風格
設計師丨劉雅呈



1. 房子戶型周正,南北通透,動靜分區 ,功能分區相對合理
2. 廚房采光大且正對餐廳,廚房U形使用率更高
3. 臥室居于客廳兩側,私密性更佳
4. 主臥帶有飄窗,采光面積大,空間尺寸感更好。
需要改造:
1. 贈送陽臺放在餐廳一側,占用空間,后期設計中可歸為餐廳使用
2. 入戶一側臥室衛生間較小,需合理化合計
3. 餐廳上芳有兩根建筑上的梁,需要在后期設計中弱化